KGX – Mẫu nhà 3 tầng hiện đại 2021 với không gian thoáng mát, là nơi để cả nhà trở về sum vầy sau một ngày làm việc, học tập. Đồng thời, sự hợp lý trong cách bố trí công năng trong ngôi nhà tạo nên một không gian đáng sống cho gia chủ.
Mẫu nhà 3 tầng hiện đại 2021 này do anh Tuấn Phong làm chủ đầu tư, tọa lạc tại thành phố biển Vũng Tàu. Nhìn vào mặt tiền ngôi nhà, bạn có thể thấy các hình khối vuông vắn mang đến vẻ đẹp độc đáo cho tổ ấm của gia chủ. Đây là mẫu nhà với số lượng 3 phòng ngủ, đủ đáp ứng nhu cầu sinh hoạt cho các thành viên trong gia đình.
Ngôi nhà được thiết kế dạng mái nhật, đồng thời sự kết hợp hài hòa giữa yếu tố màu sắc và hiệu ứng ánh sáng đã tạo nên ngôi nhà mang phong cách hiện đại. Đặc biệt, sử dụng chi tiết ban công trồng cây xanh làm điểm nhấn cho ngôi nhà, mang lại không gian xanh mát hơn.
Mặt bằng công năng chính
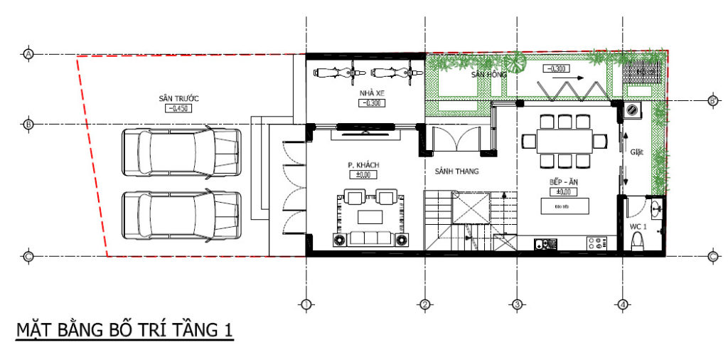
1. Công năng tầng 1

Mẫu nhà 3 tầng hiện đại 2021 được Kiến trúc sư của Không Gian Xanh bố trí cây xanh tại ban công và ô cửa sổ lớn, tận dụng nguồn ánh sáng tự nhiên hiệu quả.
Khu vực công năng tầng 1 bao gồm phần sân trước nhà làm gara ô tô kết hợp tiểu cảnh sân vườn, phòng khách, phòng bếp – ăn, 1 WC, khu vực giặt và phơi đồ.
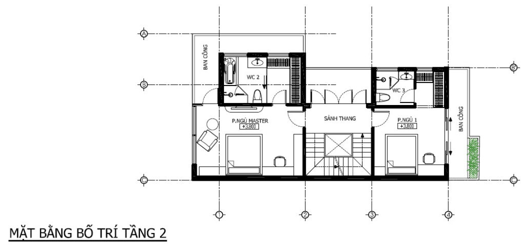
2. Công năng tầng 2

Khu vực tầng 2 với công năng phòng ngủ master, phòng ngủ 1, 2 WC, ban công.
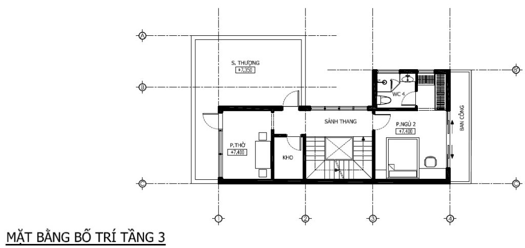
3. Công năng tầng 3

Mặt bằng công năng tầng 3 bao gồm 1 phòng ngủ, 1 WC, phòng thờ, kho, sân thượng, ban công.





