KGX – Bạn đã tham khảo rất nhiều thiết kế homestay đẹp Vũng Tàu nhưng vẫn ấn tượng nhất là mẫu thiết kế dưới đây của Không Gian Xanh? Thật đáng tự hào khi đội ngũ kiến trúc sư của chúng tôi đã kiến tạo nên một “siêu phẩm” như vậy!
Homestay ấn tượng ngay từ cái nhìn đầu tiên. (Ảnh: KGX)
Những năm gần đây với lượng du khách đổ về thành phố du lịch Vũng Tàu ngày càng tăng, nhu cầu sử dụng các căn hộ homestay cũng tăng lên từ đó. Để thu hút khách lưu trú, các chủ đầu tư thường tạo nên sự khác biệt và điểm nhấn cho homestay của mình. Chính vì thế, thiết kế homestay đẹp Vũng Tàu đang là dịch vụ nhận được nhiều sự quan tâm hiện nay.
Góp nhặt từ những mong muốn, cá tính và sở thích của Chủ đầu tư, kiến trúc sư Không Gian Xanh đã tạo nên một homestay rất riêng với mặt tiền ấn tượng. Không sử dụng vật liệu đắt đỏ, khó tìm, những viên gạch bông gió sử dụng ở mặt tiền cũng đủ mang đến cho homestay vẻ đẹp khó quên. Việc sử dụng những viên gạch đặc biệt này không chỉ giúp không gian ngôi nhà tràn ngập ánh sáng và gió tự nhiên mà còn mang tính thẩm mỹ.
Mẫu thiết kế homestay đẹp Vũng Tàu này, chắc chắn sẽ mang đến những trải nghiệm thú vị cho du khách. Dưới đây là mặt bằng bố trí công năng:
Mặt bằng công năng tầng 1
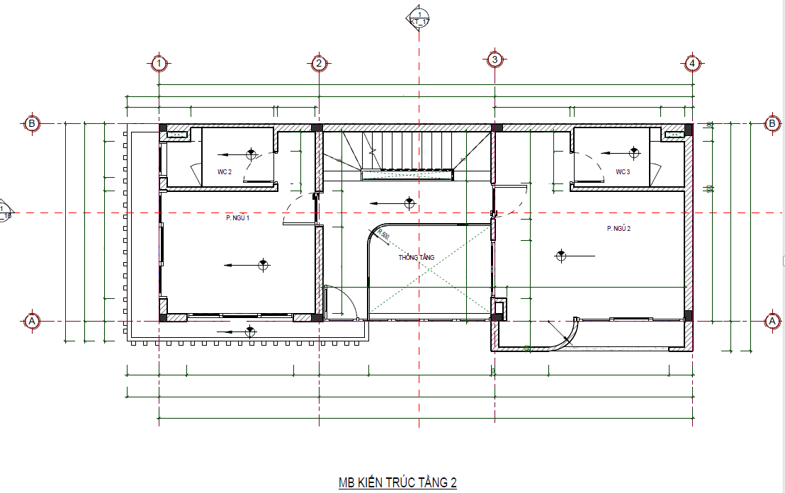
Mặt bằng công năng tầng 2
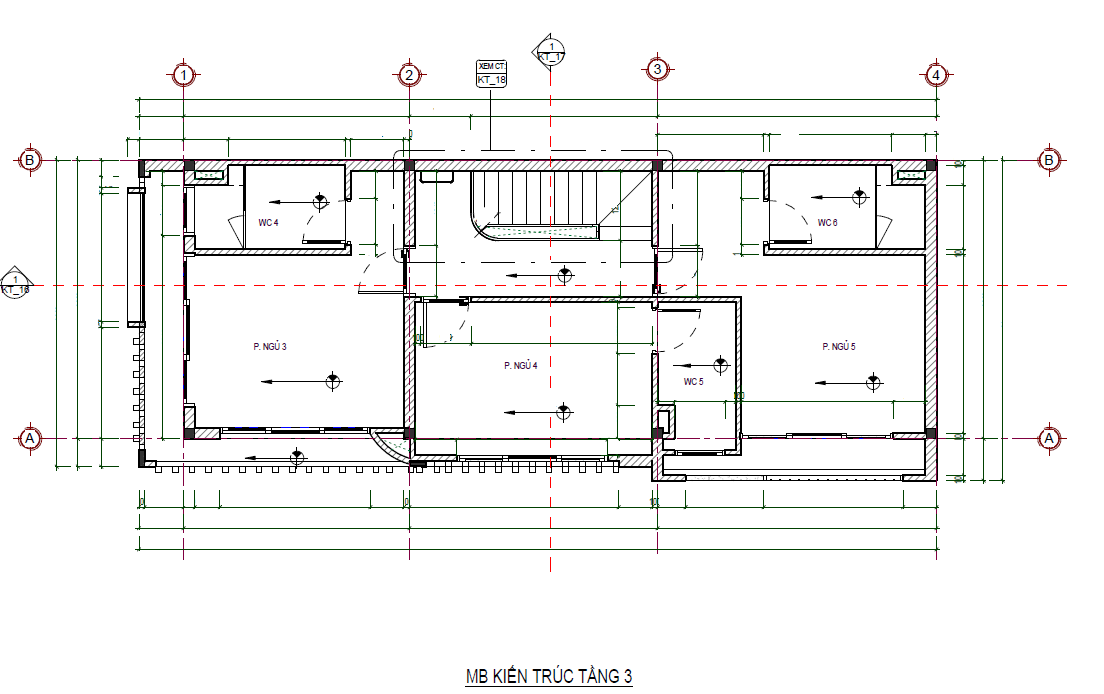
Mặt bằng công năng tầng 3
Nếu đã trót yêu mẫu thiết kế homestay đẹp Vũng Tàu của kiến trúc Không Gian Xanh, hãy liên hệ ngay để được đội ngũ kiến trúc sư tư vấn chi tiết. Chúng tôi vẫn luôn ở đây và sẵn sàng hỗ trợ tư vấn bạn mọi lúc mọi nơi!
Không Gian Xanh – Giúp bạn kiến tạo không gian sống mơ ước
Bất cứ ý tưởng nào bạn đang mường tượng trong đầu về không gian sống của riêng mình. Hãy để đội ngũ Không Gian Xanh giúp bạn hiện thực hoá một cách trọn vẹn nhất! Liên hệ Không Gian Xanh và nhận tư vấn tại:- Fanpage: Kiến Trúc Không Gian Xanh
- Website: Khonggianxanh.com
- Hotline: 02543 563948 – 0936 551 551
- Đặt lịch: https://bom.so/JvALTQ
- TP Hồ Chí Minh: Số 3 Đường Bạch Đằng, Phường 2, Quận Tân Bình.
- TP Đà Nẵng: 275 Núi Thành, Phường Hòa Cường Bắc, Quận Hải Châu.
- TP Vũng Tàu: 24 Bế Văn Đàn, Phường 7.
- TP Bà Rịa: 943 Phạm Hùng, Phường Phước Nguyên.







