KGX – Dưới đây là mẫu nhà phố 3 tầng Đà Nẵng đẹp, cuốn hút với kiến trúc vòm cong, chinh phục người xem ngay từ cái nhìn đầu tiên. Không Gian Xanh mời bạn cùng chiêm ngưỡng!
Mặt tiền nhà phố 3 tầng
Ngôi nhà phố theo phong cách tân cổ điển, được thiết kế tinh tế trong từng chi tiết, đưa vào ý tưởng đường nét uốn cong làm điểm nhấn cho nhà phố 3 tầng Đà Nẵng đẹp mê ly. Các ô cửa lớn mở phía trước giúp cho phối cảnh ngoại thất thoáng đãng, tăng lưu thông gió và ánh sáng trong nhà. Thiết kế kiến trúc nhà phố này gợi liên tưởng như đang ở Tây Âu, thoả mãn sở thích trồng các loại cây xanh treo thả của chủ nhà.

Công trình do Không Gian Xanh thiết kế và thi công trọn gói. (Ảnh: KGX)
Nếu như bạn đã quá quen thuộc với những đường nét kiến trúc vuông vắn thông thường, thì bạn có thể biến tấu với vòm cong mới lạ, đầy sáng tạo.
Sự đồng bộ ngay trong thiết kế mặt tiền ngôi nhà đã tạo nên vẻ đẹp cuốn hút, chinh phục gia chủ ngay từ cái nhìn đầu tiên.
Mặt bằng bố trí công năng
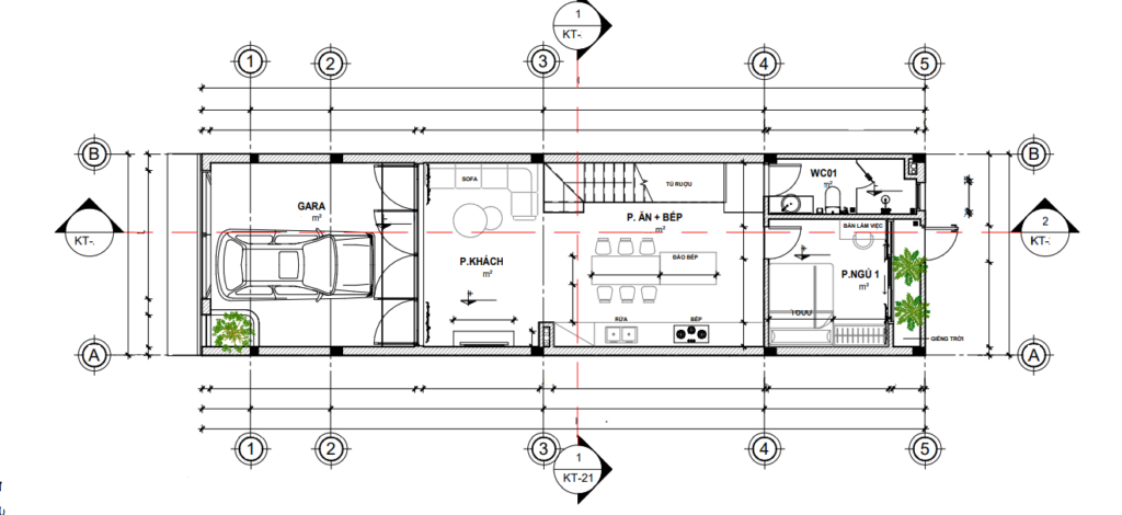
Mẫu nhà 3 tầng là sự lựa chọn của rất nhiều gia chủ hiện nay. Bởi mẫu nhà này phù hợp với nhu cầu sử dụng, công năng tiện nghi và thẩm mỹ cao.

Mặt bằng công năng tầng 1

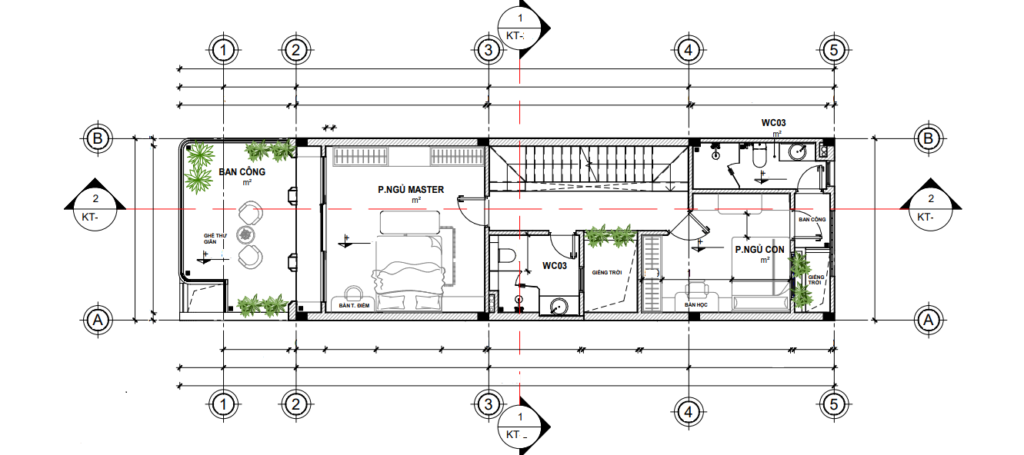
Mặt bằng công năng tầng 2

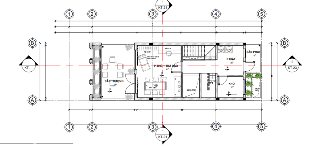
Mặt bằng công năng tầng 3
Nhằm đảm bảo sự thống nhất cao nhất trong thiết kế không gian sống, đẹp và đồng bộ về ý tưởng chủ đề, vật liệu màu sắc, đặc biệt là tối ưu chi phí đầu tư; gia đình anh H. đã ký hợp đồng thiết kế thi công kiến trúc – nội thất trọn gói với Không Gian Xanh.
Cùng xem các không gian nội thất bên trong căn nhà phố này liệu có bắt mắt và ấn tượng như vẻ ngoài kiều diễm của nó hay không nhé.



Công ty Kiến Trúc Không Gian Xanh
Nếu bạn ấn tượng với thiết kế nhà phố 3 tầng Đà Nẵng đẹp với vòm cong mới lạ, hãy liên hệ ngay Không Gian Xanh để được đội ngũ kiến trúc sư tư vấn chi tiết. Qua mỗi công trình, sự hài lòng, tín nhiệm của quý khách hàng là nguồn động lực bất tận để chúng tôi viết tiếp chặng đường của mình trong tương lai!
(Xem album kiến trúc – nội thất đầy đủ tại đây
Xem thêm các công trình nhà phố ấn tượng khác tại đây.
Bất cứ ý tưởng nào bạn đang mường tượng trong đầu về không gian sống của riêng mình, hãy để đội ngũ Không Gian Xanh giúp bạn hiện thực hoá một cách trọn vẹn nhất!
Đặt lịch tư vấn cùng KTS Không Gian Xanh ngay: https://bom.so/JvALTQ
Gọi ngay: 02543 563948 – 0936 551 551
Hệ thống Không Gian Xanh có mặt tại các thành phố lớn khu vực miền Nam:
- TP HỒ CHÍ MINH: Số 3 Đường Bạch Đằng, Phường 2, Quận Tân Bình
- TP ĐÀ NẴNG: 275 Núi Thành, P. Hòa Cường Bắc, Q. Hải Châu
- TP VŨNG TÀU: 24 Bế Văn Đàn, P.7
- TP BÀ RỊA: 943 Phạm Hùng, P. Phước Nguyên.

































