KGX – Mẫu thiết kế nhà phố Vũng Tàu 3 tầng mái Nhật dưới đây của Không Gian Xanh nhận được nhiều sự quan tâm của khách hàng. Mời bạn cùng khám phá!
Mong muốn của gia chủ!
Phương án thiết kế nhà phố Vũng Tàu 3 tầng mái Nhật gây ấn tượng với chủ đầu tư ngay lần trình duyệt đầu tiên. Chủ nhân ngôi nhà là cặp vợ chồng trẻ, ngụ tại thành phố Vũng Tàu. Qua lời giới thiệu của bạn bè, vợ chồng anh H. tìm đến Không Gian Xanh và bày tỏ những mong muốn về tổ ấm tương lai của mình.
Với khu đất hiện tại, gia chủ muốn thiết kế một ngôi nhà phố công năng 3 tầng, đáp ứng đầy đủ nhu cầu sử dụng của gia đình. Đồng thời, vợ chồng anh H. đều hướng đến sự thoải mái, tiện nghi, hiện đại và mới lạ. Những tiêu chí này, đội ngũ kiến trúc sư Không Gian Xanh đã gợi ý cho vợ chồng anh mẫu thiết kế nhà phố mái Nhật, một xu hướng thiết kế kiến trúc đã và đang “làm mưa làm gió” tại Bà Rịa – Vũng Tàu cũng như các tỉnh thành khác.
Vẻ đẹp nhà phố 3 tầng

Mặt tiền nhà phố Vũng Tàu 3 tầng. (Ảnh: KGX)
Không phụ lòng của gia chủ, chúng tôi đã thiết kế mẫu nhà phố Vũng Tàu 3 tầng công năng hoàn mỹ từ nội đến ngoại thất. Mặt tiền ngôi nhà là sự kết hợp độc đáo với những nét chấm phá của màu sắc và chất liệu của kiến trúc hiện đại. Đặc biệt, kiến trúc sư tạo điểm nhấn bằng cách chú trọng vào việc tạo hình khối vững vàng cho ngôi nhà tạo nên vẻ đẹp sang trọng và tinh tế.
Ngôi nhà là một khối hình vuông vức nhưng vẫn có những khoảng đua – lùi để tạo sự khác biệt vô cùng ấn tượng. Khoảng đua ra được tận dụng làm ban công hóng gió cho tầng 2 khá hợp lý.

Nhà phố 3 tầng mái nhật ấn tượng. (Ảnh: KGX)
Mái nhà là kiểu mái nhật có độ dốc vừa phải để hài hòa với kiến trúc tổng thể. Đặc biệt không chỉ khối mái chính mà mái nhật được sử dụng xuyên suốt cả 3 tầng. Những khối mái xếp tầng tầng lớp lớp, đua ra vô cùng thống nhất. Với cách kiến tạo này đã tạo nên sự mới lạ cho diện mạo của ngôi nhà.
Phần cửa chính được làm bằng gỗ khá thân thuộc. Tuy nhiên, để các phòng lấy được tối đa ánh sáng thì cửa sổ được lồng ghép với những ô kính trong suốt. Điều này giúp gia chủ có thể mở rộng thoáng tầm mắt, đưa thiên nhiên vào không gian sống của chính mình.
Tổng thể ngôi nhà vẫn lấy màu trắng tinh khôi làm chủ đạo. Đây cũng là màu sơn mà gia chủ yêu thích, làm nổi bật không gian ngoại thất. Màu trắng cũng giúp những chi tiết hoa văn trang trí, cửa sổ cùng hệ mái Nhật khoe được vẻ duyên dáng.
Mặt bằng bố trí công năng
Không chỉ hoàn hảo về ngoại thất, mẫu thiết kế nhà phố mái Nhật của vợ chồng anh H. còn mang đến một không gian sống tiện nghi, tối ưu và khoa học.

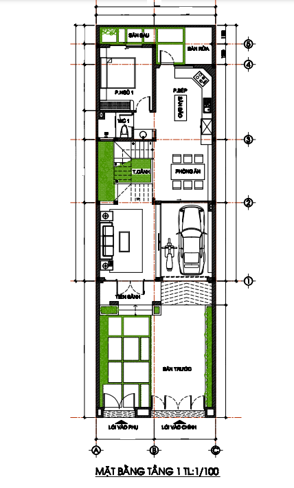
Không gian tầng 1 là khu vực sinh hoạt chung với phòng khách, bếp ăn, phòng ngủ ông bà. Tạo nên sự gần gũi và thuận tiện cho di chuyển.

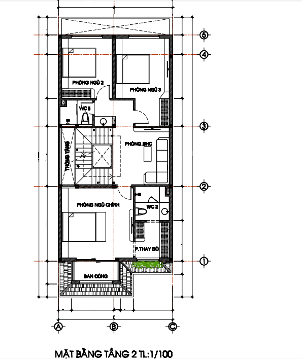
Tầng 2 mẫu nhà phố 3 tầng mái Nhật là không gian nghỉ ngơi của gia đình thiết kế gồm 3 phòng ngủ và 1 không gian sinh hoạt chung. Trong đó có 1 phòng ngủ được thiết kế khép kín theo dạng master dành cho vợ chồng anh H.

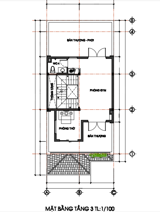
Tầng 3 được thiết kế bao gồm phòng thờ tổ tiên, phòng gym, khu giặt phơi và sân thượng.
Nếu đang tham khảo mẫu thiết kế nhà phố Vũng Tàu 3 tầng đẹp thì đây chính là một trong những sự lựa chọn dành cho bạn. Hãy liên hệ ngay cho chúng tôi để được đội ngũ kiến trúc sư tư vấn chi tiết, phù hợp với mong muốn và công năng về một tổ ấm tương lai hoàn mỹ.





