BIỆT THỰ TÂN CỔ ĐIỂN VŨNG TÀU 3 TẦNG – VẺ ĐẸP TINH TẾ GIỮA LÒNG THÀNH PHỐ

string(213) "a:5:{s:16:"project_album_id";s:5:"15743";s:10:"chu_dau_tu";s:5:"Mr A.";s:13:"dia_chi_du_an";s:23:"Thành phố Vũng Tàu";s:12:"nam_thiet_ke";s:4:"2023";s:12:"nha_thiet_ke";s:30:"Kiến trúc Không Gian Xanh ";}"
Mr A.
2023
Kiến trúc Không Gian Xanh
Thành phố Vũng Tàu

Chiêm ngưỡng vẻ đẹp tinh tế, sang trọng của biệt thự Tân cổ điển Vũng Tàu, thể hiện được đẳng cấp của gia chủ. Nhận được sự tin tưởng và hài lòng của chủ đầu tư, công trình được Không Gian Xanh thiết kế và thi công trọn gói.

Vẻ đẹp biệt thự Tân cổ điển Vũng Tàu

Tại Việt Nam, kiến trúc Tân cổ điển được nhiều gia chủ yêu thích, lựa chọn xây tổ ấm cho gia đình mình. Với nét đẹp sang trọng, tinh tế và có chút hoài cổ, kiến trúc giúp tôn vinh giá trị chủ nhân ngôi nhà.

Mặt tiền chính diện biệt thự tân cổ Vũng Tàu
Mặt tiền chính diện biệt thự tân cổ

Cá nhân hóa phong cách của gia chủ

Anh A. – chủ đầu tư biệt thự, tìm đến Không Gian Xanh vào một sáng đầu tháng 4. Anh đã tìm hiểu khá nhiều công ty kiến trúc và quyết định chọn Không Gian Xanh sau khi tham khảo các công trình của công ty. Bên cạnh đó, anh cũng tìm đến một số khách hàng trước của công ty. Tất cả để đảm bảo mình có được một không gian sống hoàn mỹ nhất.

Phối cảnh biệt thự tân cổ từ trên cao nhìn xuống
Phối cảnh biệt thự tân cổ từ trên cao

Đối với gia chủ, biệt thự Tân cổ điển Vũng Tàu không chỉ là nơi ở mà còn là nơi nghỉ dưỡng đẳng cấp. Một không gian sống vun đắp ước mơ, gắn kết thành viên gia đình, là nơi ước về mỗi khi đi xa.

Biến hình từ hiện trạng thành căn biệt thự 3 tầng theo kiến trúc Tân cổ, cá nhân hóa phong cách và sở thích của gia chủ. Kiến trúc sư Không Gian Xanh nhận được sự hài lòng và tin tưởng của anh A. chỉ sau 3 tuần từ lúc bắt đầu lên phương án.

Kiến trúc biệt thự Tân cổ điển

Vẻ đẹp của biệt thự Tân cổ điển Vũng Tàu là vể tỷ lệ hoàn mỹ. Cùng sự cảm thụ từ những chi tiết tinh xảo hài hòa. Những chi tiết mang đến sự mềm mại cho hình khối kiến trúc.

Kiến trúc Tân cổ được ưa chuộng chính là nhờ vẻ đẹp vượt thời gian. Cùng sự kết hợp tuyệt vời giữa vẻ đẹp đẳng cấp, sang trọng và tỷ lệ hài hòa cho không gian sống. Nắm bắt được tâm ý của gia chủ, cộng với kinh nghiệm trong các công trình tân cổ điển trước. KTS Không Gian Xanh đã đem đến kiến trúc biệt thự ấn tượng và nhận được cái gật đầu hài lòng của chủ đầu tư.

Tổng thể kiến trúc hình khối cân đối được thiết kế theo tỷ lệ vàng hoàn hảo. Theo chiều ngang, biệt thự gồm 3 phần và 2 khối phụ đối xứng qua khối sảnh chính. Các hệ cửa kính lớn và thiết kế ban công cho các tầng để đón nắng gió tự nhiên. Đây cũng là khoảng không gian thư giãn riêng cho các thành viên.

Mặt bằng công năng của biệt thự Tân cổ điển Vũng Tàu

Bên cạnh chăm chút tính thẩm mỹ ngoại thất biệt thự, KTS cũng đầu tư không ít công sức vào thiết kế công năng bên trong. Biệt thự phải đảm bảo được tính thẩm mỹ theo phong cách Tân cổ. Đồng thời, không gian sống bên trong phải theo đúng mong muốn kết nối và hài lòng các thành viên gia đình.

Dưới đây là bản vẽ mặt bằng công năng của biệt thự:

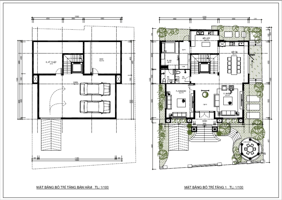
Mặt bằng công năng tầng hầm và tầng 1 biệt thự tân cổ điển
Mặt bằng công năng tầng hầm và tầng 1

Không gian sinh hoạt của gia đình được thiết kế tận tâm tới từng chi tiết nhỏ. Đảm bảo mang lại cuộc sống thuận tiện nhất cho mọi thành viên.

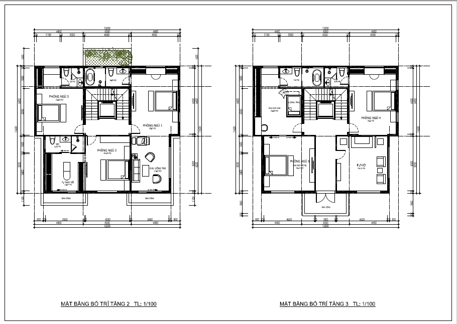
Mặt bằng công năng tầng 2 và tầng 3 biệt thự tân cổ điển
Mặt bằng công năng tầng 2 và tầng 3 biệt thự tân cổ điển Vũng Tàu

Thấu hiểu và đáp ứng nhu cầu khách hàng, KTS Không Gian Xanh chú trọng tạo yếu tố gắn kết mang lại sự hài hòa, gần gũi. Đồng thời tôn vinh được vẻ đẹp sang trọng lịch sự cho căn biệt thự 3 tầng này.

Thiết kế nội thất

Phòng khách

Phòng bếp

Phòng ngủ Master

Không Gian Xanh – Kiến tạo không gian sống mơ ước

Bất cứ ý tưởng nào bạn đang mường tượng trong đầu về không gian sống của riêng mình. Hãy để đội ngũ Không Gian Xanh giúp bạn hiện thực hoá một cách trọn vẹn nhất!

Liên hệ Không Gian Xanh và nhận tư vấn tại:

Kiến trúc Không Gian Xanh có mặt tại các thành phố lớn:

  • TP Hồ Chí Minh: Số 3 Đường Bạch Đằng, Phường 2, Quận Tân Bình.
  • TP Đà Nẵng: 275 Núi Thành, Phường Hòa Cường Bắc, Quận Hải Châu.
  • TP Vũng Tàu: 24 Bế Văn Đàn, Phường 7.
  • TP Bà Rịa: 943 Phạm Hùng, Phường Phước Nguyên.