Hiện nay, nhu cầu thiết kế và thi công biệt thự tại Bà Rịa – Vũng Tàu ngày càng tăng. Một trong những lý do chính là sự gia tăng của số lượng gia đình có nhu cầu sở hữu một không gian sống đầy đủ tiện nghi. Nếu bạn cũng đang có nhu cầu thiết kế biệt thự tại Bà Rịa Vũng Tàu, hãy tham khảo bài viết này của Không Gian Xanh để có thêm cho mình nhiều ý tưởng thú vị nhé!

1. Phối cảnh thiết kế biệt thự hiện đại 2 tầng tại Bà Rịa Vũng Tàu
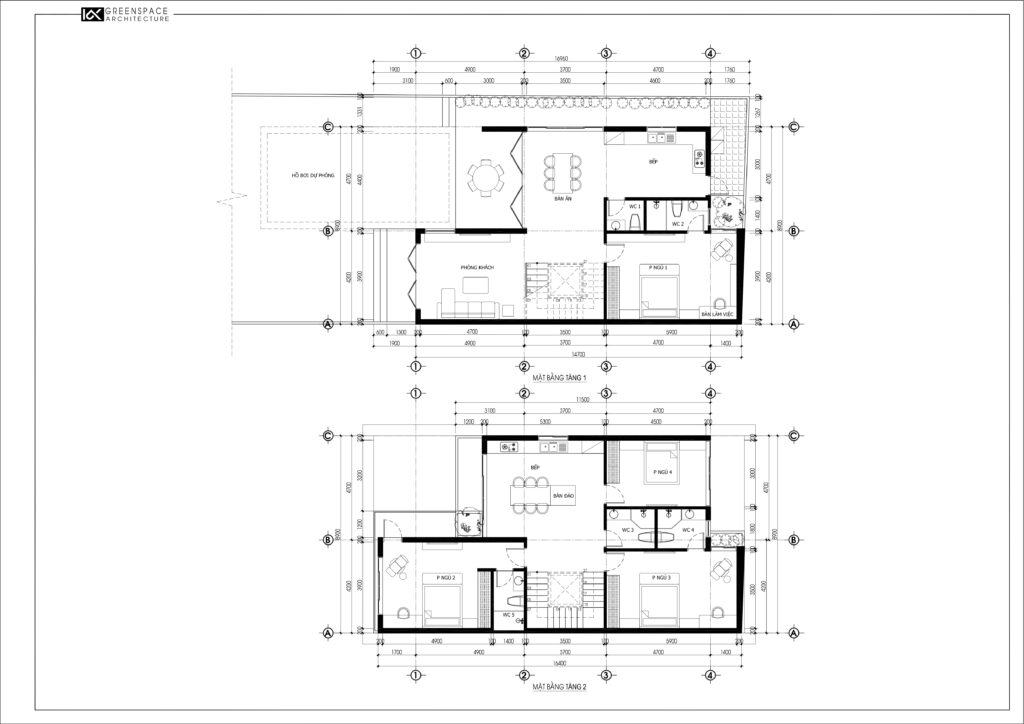
Việc sống trong các khu đô thị phát triển mạnh như Bà Rịa Vũng Tàu đòi hỏi khi thiết kế biệt thự có diện tích không quá lớn thì kiến trúc sư vẫn phải đảm bảo đủ không gian cho các hoạt động gia đình. Do đó, thiết kế 2 tầng giúp phân bố không gian một cách hợp lý, từ phòng khách, bếp ăn đến các phòng ngủ và phòng làm việc. Quan sát kỹ mặt bằng công năng của dự án này, bạn sẽ thấy ở cả 2 tầng đều được thiết lập hệ thống phòng bếp. Điều này giúp mang đến nhiều tiện ích trong quá trình sinh hoạt của cả gia đình.

Ngoài tiện ích sống, việc thiết kế biệt thự phố 2 tầng còn mang đến giá trị thẩm mỹ cao. Lý do là vì thiết kế hiện đại, sử dụng vật liệu và công nghệ xây dựng tiên tiến. Điều này giúp tạo nên không gian sống sang trọng và đẳng cấp cho các gia đình. Đồng thời là nơi lý tưởng để đầu tư và gia tăng giá trị bất động sản.

Dự án biệt thự phố 2 tầng này được thiết kế với không gian mở, sử dụng ánh sáng tự nhiên tối đa và tối ưu hóa diện tích để đáp ứng các nhu cầu sinh hoạt hàng ngày của gia đình. Ngoài ra còn tích hợp với thiên nhiên để tạo không gian xanh bền vững cho môi trường sống. Bên cạnh đó, thiết kế ngoại thất mang phong cách hiện đại, tối giản còn giúp đơn giản hóa việc bảo trì và vệ sinh, giúp cho việc duy trì sự sạch sẽ và độ mới của không gian.

2. Hình ảnh thiết kế nội thất biệt thự tại Bà Rịa Vũng Tàu
2.1. Nội thất không gian khách bếp
Không gian khách bếp của dự án biệt thự hiện đại này tỏa sáng với gam màu xám nhạt thanh lịch. Phòng khách được trang bị sofa bọc vải cao cấp màu xám, kết hợp với bàn trà kính tạo nên vẻ đẹp tinh tế. Nhà bếp mở kết nối mượt mà với phòng khách, với các tủ bếp màu gỗ nhạt, cùng bề mặt đá trắng tạo điểm nhấn. Ánh sáng tự nhiên tràn ngập qua cửa kính lớn, làm nổi bật sự hiện đại và thoáng đãng. Những chi tiết trang trí đơn giản nhưng tinh tế mang đến cảm giác ấm cúng và sang trọng.




2.2. Nội thất không gian phòng ngủ master
Phòng ngủ master được KTS thiết kế với gam màu xám nhạt chủ đạo mang đến cảm giác thư thái và sang trọng. Màn hình chiếu treo tường đối diện giường, mang lại tiện nghi giải trí. Tủ chứa đồ với mặt kính trong suốt, gọn gàng, giúp phòng luôn ngăn nắp và hiện đại. Bàn trang điểm thiết kế thanh lịch, tích hợp gương lớn và ngăn kéo tiện dụng. Ánh sáng tự nhiên từ ô cửa sổ lớn, giúp không gian nghỉ ngơi luôn sáng sủa và thoáng đãng.




2.3. Nội thất không gian phòng ngủ thường
Nội thất phòng ngủ thường với gam màu xám nhạt chủ đạo được thiết kế riêng biệt cho từng thành viên. Phòng phối màu hồng dành cho con gái, với giường phủ chăn ga hồng, kèm theo các họa tiết trang trí trên tường dễ thương và rèm cửa màu hồng phấn tạo nên không gian ngọt ngào và tươi vui.


Căn phòng ngủ còn lại phối màu cây lá mang phong cách thiên nhiên, với bức tường trang trí hình lá cây xanh mướt. Ngoài ra, các màu bổ trợ như hồng và xanh dương giúp tạo điểm nhấn, mang đến cảm giác hài hòa và gần gũi với thiên nhiên.


Tóm lại, mẫu thiết kế biệt thự phố 2 tầng cho dự án lần này không chỉ đơn thuần là để sinh hoạt. Đó còn là sự lựa chọn thông minh và đầu tư bền vững cho tương lai của mỗi gia đình.
Không Gian Xanh – Kiến tạo không gian sống mơ ước
Đặt ra sứ mệnh kiến tạo giá trị sống thông qua việc thỏa mãn các ước mơ của gia chủ, Không Gian Xanh đã đồng hành với hơn 100+ gia chủ, hàng trăm dự án lớn nhỏ để tạo nên những không gian sống an lành. Bạn có thể tham khảo thêm các dự án biệt thự của Không Gian Xanh trên website.
Bất cứ ý tưởng nào bạn đang mường tượng trong đầu về không gian sống của riêng mình. Hãy để đội ngũ Không Gian Xanh giúp bạn hiện thực hoá một cách trọn vẹn nhất!
Liên hệ Không Gian Xanh và nhận tư vấn tại:
- Fanpage: Kiến Trúc Không Gian Xanh
- Website: Khonggianxanh.com
- Hotline: 02543 563 948 – 0907 090 828
- Đặt lịch: https://bom.so/JvALTQ
Kiến trúc Không Gian Xanh có mặt tại các thành phố lớn:
- TP Hồ Chí Minh: Số 3 Đường Bạch Đằng, Phường 2, Quận Tân Bình.
- TP Đà Nẵng: 275 Núi Thành, Phường Hòa Cường Bắc, Quận Hải Châu.
- TP Vũng Tàu: 24 Bế Văn Đàn, Phường 7.
- TP Bà Rịa: 943 Phạm Hùng, Phường Phước Nguyên.
(Phương Thảo)


























